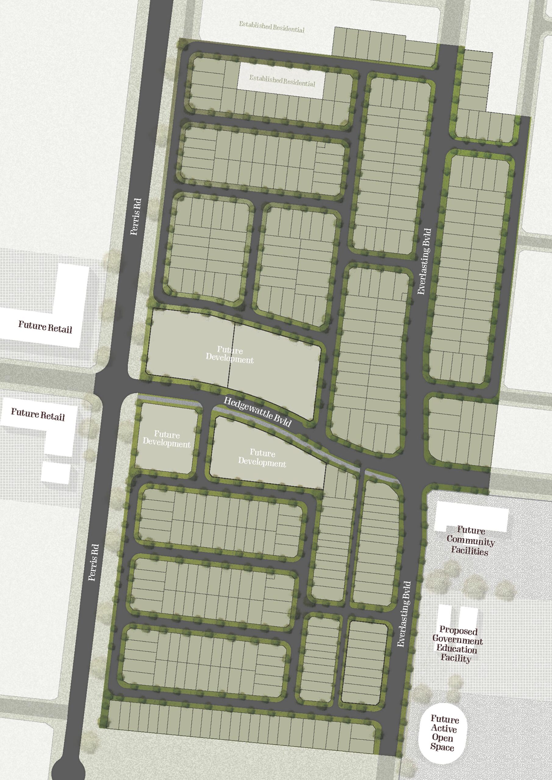
Sansara’s carefully crafted masterplan ensures effortless everyday living complemented by a wide selection of house and land options offering flexibility, choice and long-term appeal.
REGISTER YOUR INTEREST
Register your details to be among the first to hear the latest news from Sansara.